
お好みや、人数・目的に合わせて選べる3タイプの広さのオフィスをご用意致しました。
オフィス内はモノトーンで統一。
インターネット(ひかり回線)や電話回線、オフィス家具、コピー機(共用)など、必要なものはすべて揃える事が出来るので、ご入居初日から業務開始が可能です。
※電話回線はお客様と回線業者の個別の契約が必要です。
くわしくは お問い合わせフォーム もしくはお電話(092-712-4213)にてご相談下さい。
| 月額家賃 | 45,000円〜136,000円(税別) |
|---|---|
| 共益費 | 12,800円〜14,000円(税別) |
| 敷金 | 2ヶ月分 |
| 部屋数 | 全30室(1名様用〜5名様用) |
弊社指定保証会社と保証委託契約を締結して頂きます。

- フロア内には6人室、8人室の会議室2室を完備。
ちょっとした打ち合わせにも利用出来るリフレッシュスペース、給湯室も自由にご利用いただけます。 
- 専用電話番号や専用FAX番号の設置も可能。もちろん登記も可能です。
ビジネスに必要不可欠なインターネットにはひかり回線をご用意。入居当日からご利用いただけます。
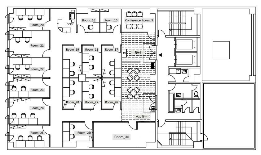
7階レンタルオフィス - 見取り図

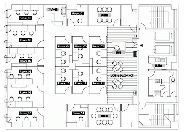
8階レンタルオフィス - 見取り図


